222 Madison Avenue Brooklyn
Brooklyn, NY 11216
About the Property
Welcome home to this one-of-a-kind converted garage in prime Bedford-Stuyvesant/Clinton Hill! Privacy, peace, and surprise await you as you enter the magical space through a non-distinct door—or drive right into your own garage—to access nearly 3,000 sq. ft. of private living space that is a true fusion of Brooklyn cool with European countryside tranquility.
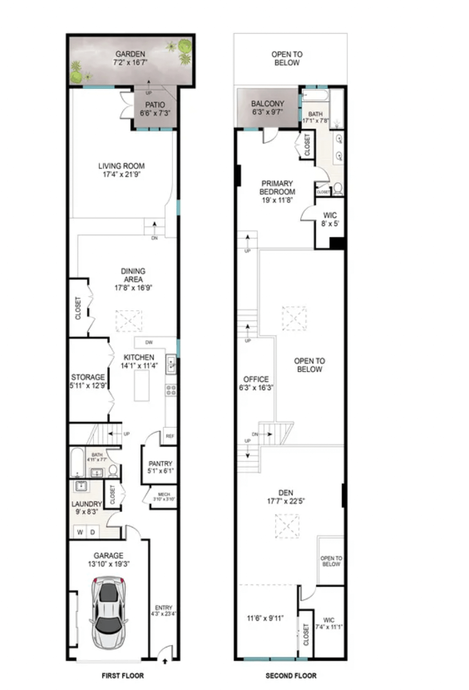
This distinctive modern loft offers two full bathrooms, multiple outdoor spaces, and nearly 17-foot double-height ceilings—perfect for the live/work lifestyle you’ve been looking for! The main level, completely open to the second floor, has radiant concrete floors throughout. The industrial kitchen is outfitted with a brand-new 36-inch Bertazzoni range oven that vents to the outside, a Bosch dishwasher, Carrara marble island, stainless steel counters and cabinets, and a walk-in pantry. The kitchen flows into the large dining room with soaring ceilings, perfect for featuring gorgeous artwork. Wrapping around the dining room is a Dutch-designed storage system and custom shelving. A few steps down lead you to the sunken living room with more custom cabinetry and plenty of space for your TV and living room furniture. Glass doors take you to the spa-like courtyard that feels like your own private oasis in the South of France—arguably the most unique outdoor space in all of Bed-Stuy. Rounding out this floor is a full bath, closets and storage everywhere you turn, and a full laundry room with conveniently placed shelving.
Head up half a flight of stairs and you will find the mezzanine overlooking the kitchen—an ideal place to set up a home office for one or two. On either side of the mezzanine are two sun-filled rooms. One side is designed as the ideal primary bedroom with an en-suite full bathroom featuring a shower and soaking tub, double vanity, walk-in closet, and an airy leafy terrace overlooking the courtyard below. This room easily fits a king-size bed, dressers, and a reading chair. The room on the opposite side is the perfect open space to be used as an art gallery, workspace, playroom, den, or office. Sunlight floods this room through northern and southern exposure windows and a centrally located skylight.
The modern renovation includes an on-demand water heater, radiant heating in the primary bedroom and den, a multiple-zoned sound system, and central AC.
Just moments from Clinton Hill, this exclusive property is a short stroll from the A/C train at Nostrand Avenue or the Bedford/Nostrand G train. Neighborhood highlights include Von King Park and a multitude of trendy coffee shops and revered restaurants such as newcomer Ursula, Speedy Romeo’s, Coffee Uplifts People, For All Things Good, Pilar Cuban Eatery, and more.
Features
My Strategy & Approach
The sellers of 15970 SW 72nd Ter were preparing for an out-of-state relocation and wanted a quick but profitable sale. We partnered with a local stager to elevate the home’s presentation, used twilight photography for maximum visual impact, and launched a targeted marketing campaign across Zillow, Instagram, and Google.
Open Houses in a Week
4
Weekly Private Showings
17
Competitive Offers
9
Sold Above Listing Price
$35k

Sell With Me
Now might be the perfect time to make a move
The area continues to see strong demand, limited inventory, and competitive offers. Whether you're just starting to think about selling or you're ready to list, understanding the local market can help you make confident decisions.
Start Your Selling Journey
Fill out the form to connect with me.

Confirm your time
Fill in your details and we will contact you to confirm a time.
Contact Form
Welcome to our open house!
We encourage you to take a few seconds to fill out your information so we can send you exclusive updates for this listing!














