161 Taymil Road
New Rochelle, NY 10804
About the Property
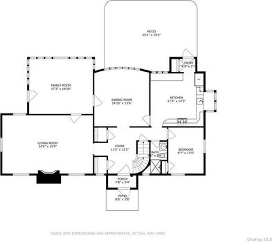
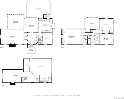
Discover the perfect blend of modern elegance and classic charm at this luxurious center hall colonial in New Rochelle's Bonnie Crest vicinity. This spacious home features a sunlit living room with a cozy fireplace, a gourmet chefs kitchen with high-end appliances, a formal dining room, and a serene backyard oasis. The master suite offers a luxurious en-suite bathroom and ample closet space, while additional bedrooms provide versatility for a growing family or guests. The finished basement adds extra living space perfect for a home office, gym, or recreation room. Situated in a sought-after neighborhood, this home is conveniently located near parks, schools, shopping, dining, and offers easy access to major highways and public transportation. Don't miss your opportunity to make this exceptional property your new home. Schedule a showing today and experience the timeless allure of 161 Taymil Road.
Features
My Strategy & Approach
The sellers of 15970 SW 72nd Ter were preparing for an out-of-state relocation and wanted a quick but profitable sale. We partnered with a local stager to elevate the home’s presentation, used twilight photography for maximum visual impact, and launched a targeted marketing campaign across Zillow, Instagram, and Google.
Open Houses in a Week
4
Weekly Private Showings
17
Competitive Offers
9
Sold Above Listing Price
$35k

Sell With Me
Now might be the perfect time to make a move
The area continues to see strong demand, limited inventory, and competitive offers. Whether you're just starting to think about selling or you're ready to list, understanding the local market can help you make confident decisions.
Start Your Selling Journey
Fill out the form to connect with me.

Confirm your time
Fill in your details and we will contact you to confirm a time.
Contact Form
Welcome to our open house!
We encourage you to take a few seconds to fill out your information so we can send you exclusive updates for this listing!




































